Installatietekening / Installatieberekening



Gaat u bouwen of verbouwen en wilt u zelf de elektrische installatie aanleggen?

Wanneer u gaat bouwen of verbouwen is een goede installatie van belang, voor nu en voor de toekomst.
Een installatie omvat meer dan alleen schakelaars en stopcontacten, ook de aansluitingen voor televisie, telefoon en internet horen hierbij.
Een goed lichtplan is niet alleen functioneel, dit geeft ook sfeer aan uw huis en biedt extra comfort.
Daarnaast dient de installatie te voldoen aan de huidige gelden normen en regelgeving.

Wij helpen u graag met het ontwerp en de berekening van de installatie.

Neem vrijblijvend contact met ons op om de mogelijkheden te bespreken!

Een eerste inventarisatie is geheel vrijblijvend en kosteloos!

 

Hoe gaan wij te werk?

Inventarisatie

Na ontvangst van uw aanvraag nemen wij contact met u op om de werkzaamheden te inventariseren.
Zodat wij een helder beeld krijgen van de werkzaamheden en u een helder beeld krijgt wat u van ons kan verwachtten.

Deze eerste inventarisatie is geheel vrijblijvend en kosteloos. 
Pas na de inventarisatie hoeft u te besluiten of wij u mogen helpen bij het ontwerp en de berekening van de installatie.

Bespreken werkzaamheden

Wanneer wij u mogen helpen bij het ontwerp en de berekening van de installatie zullen wij met u een afspraak inplannen voor een persoonlijk gesprek.
Tijdens dit gesprek zullen wij met u de werkzaamheden, uw wensen en de mogelijkheden bespreken. Wij zullen u informeren en adviseren om zo tot een ontwerp te komen wat bij uw wensen past en binnen de mogelijkheden valt.

Ontwerp installatie

De informatie voortkomend uit het gesprek vertalen wij naar een ontwerp installatietekening. Alle werkzaamheden, wensen, adviezen worden verwerkt in het ontwerp van de installatie conform de huidige geldende normen en regelgeving. Ter controle en goedkeuring ontvangt u het ontwerp digitaal van ons. Na ontvangst nemen wij contact met u op om het ontwerp door te spreken, eventuele wijzigingen kunnen altijd nog aangebracht worden. 

Installatieberekening

Wanneer wij een ontwerp hebben gemaakt gaan wij een installatieberekening maken op basis van dit ontwerp.
Dit houd in dat wij gaan berekenen wat de belasting is van de installatie en hierop gebaseerd de installatie uitwerken.
Dit uitwerken bestaat uit groepen toewijzen en verdelen over minimaal 2 aardlekschakelaars, bepalen hoeveel groepen er nodig zijn en welke karakteristiek nodig is.

Installatietekening

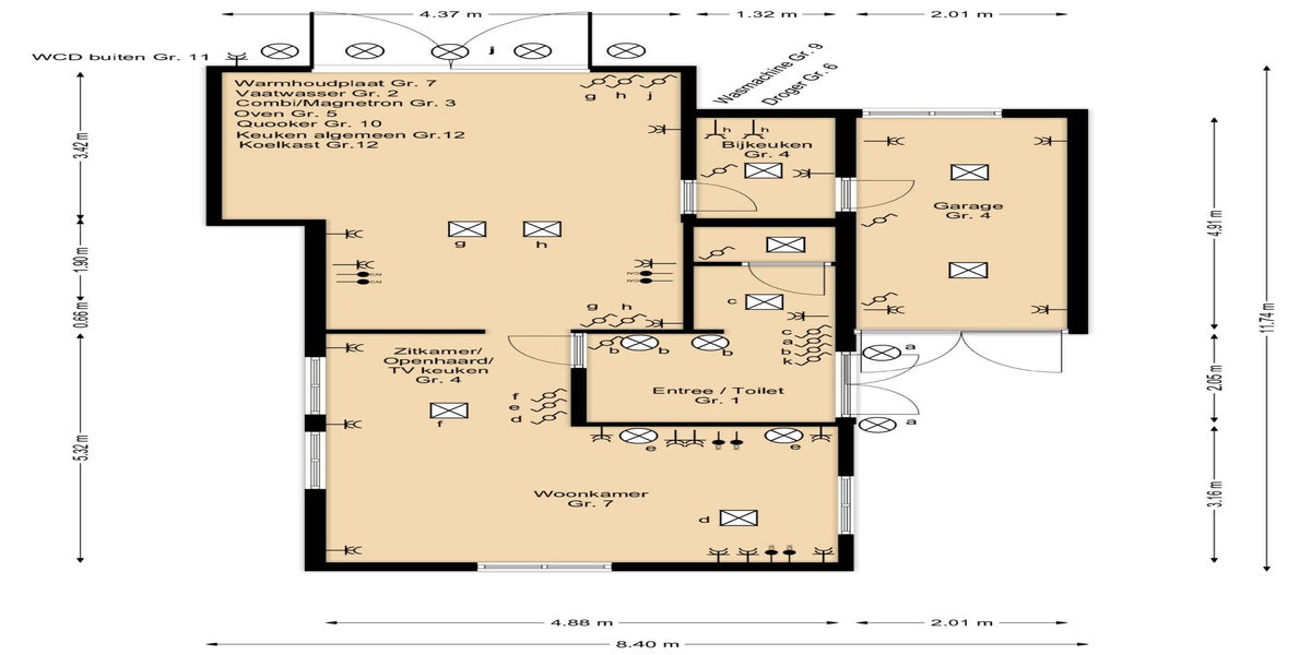
De installatietekening ontstaat door het verwerken van de installatieberekening in het ontwerp. De installatietekening die hieruit ontstaat geeft een duidelijk beeld van de installatie. De stopcontacten, schakelaars en lichtpunten zijn allen voorzien van groepsnummers en schakelcodes. Loze leidingen, zakleidingen, CAI aansluitingen en UTP aansluitingen zijn duidelijk weer gegeven. Ook is het mogelijk om leiding trajecten weer te geven. 

Daarnaast is de tekening voorzien van duidelijk omschrijvingen en worden afmetingen weergegeven. 

Ter controle en goedkeuring ontvangt u de installatietekening digitaal van ons. Na ontvangst nemen wij contact met u op om het ontwerp door te spreken, eventuele wijzigingen kunnen altijd nog aangebracht worden.  

Oplevering

Nadat de installatietekening goedgekeurd is ontvangt u van ons:

  • Installatietekening, digitaal in PDF formaat
  • Installatietekening, per verdieping/ruimte uitgeprint ( A4 )
  • Installatieberekening, digitaal in PDF formaat
  • Groepenverklaring, digitaal in PDF formaat
  • Groepenverklaring, uitgeprint ( A4 )


Wat zijn de kosten

De kosten voor het ontwerpen en berekenen van uw installatie zijn v.a. €399,- inclusief BTW**

Wat krijgt u hiervoor:

  • Inventarisatie werkzaamheden
  • Advies met betrekking tot installatie en werkzaamheden
  • Ontwerp installatietekening ( maximaal 2x wijzigen na ontvangst ontwerp ter controle en goedkeuring )
  • Installatieberekening
  • Installatietekening ( maximaal 2x wijzigen na ontvangst installatietekening ter controle en goedkeuring )
  • Installatietekening, digitaal in PDF formaat
  • Installatietekening, per verdieping/ruimte uitgeprint ( A4 )
  • Installatieberekening, digitaal in PDF formaat
  • Groepenverklaring, digitaal in PDF formaat
  • Groepenverklaring, uitgeprint ( A4 )
  • Oplevering binnen 2 tot 12 weken


Wilt u graag geholpen worden door ons?

Neem dan geheel vrijblijvend contact met ons op om de mogelijkheden te bespreken!
Klik hier voor onze contact gegevens of vul het formulier in door hier te klikken.

 

**De kosten voor het ontwerpen en berekenen van uw installatie bedragen minimaal €399,- inclusief BTW, afhankelijk van de situatie en uw wensen kan dit bedrag hoger uitvallen. Vraag voor een exacte prijsopgave een offerte aan door geheel vrijblijvend en kosteloos contact met ons op te nemen.